Aktuelles Angebot
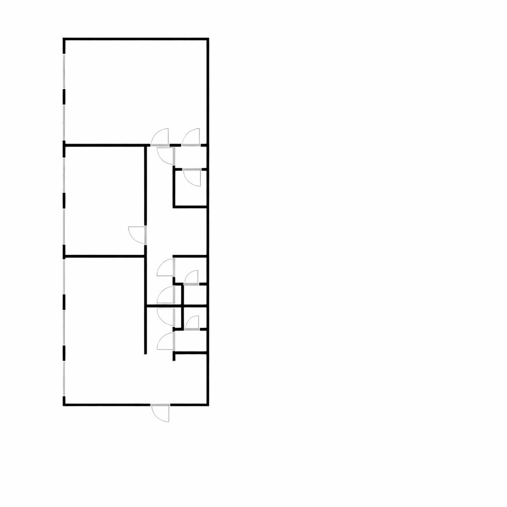
Erdgeschoss Anbau
Die Bürofläche befindet sich im Erdgeschoss des Anbaus und umfasst ca. 145 m². Die Fläche bietet flexible Nutzungsmöglichkeiten und kann in bis zu sieben Einzelbüros aufgeteilt werden.
Zur Ausstattung gehören getrennte Toiletten mit Marmorausstattung, ein Abstellraum sowie die Möglichkeit, eine Teeküche und einen separaten Telefon- oder Besprechungsraum einzurichten. Optional kann zudem eine Doppelgarage angemietet werden.

Inspirationen
Die Bürofläche bietet Ihnen die Möglichkeit, die Raumaufteilung und Nutzung individuell nach Ihren Anforderungen zu gestalten. Ob Einzelbüros, Besprechungsräume oder offene Arbeitsbereiche – die Fläche kann flexibel an die Bedürfnisse Ihres Unternehmens angepasst werden. So entsteht eine Arbeitsumgebung, die optimal zu Ihrem Team und Ihren Arbeitsabläufen passt.
Flexible Möglichkeiten
Die Bürofläche ist aktuell teilrenoviert, wodurch sich besonders gute Möglichkeiten für eine individuelle Gestaltung und Anpassung bieten. Raumaufteilung und Ausstattung können so gezielt auf die Anforderungen Ihres Unternehmens abgestimmt werden.
01
Miete
€ 1.520,-
zzgl. € 450,- Nebenkosten
(inkl. Heizung)
Die Vermietung erfolgt ohne Ausweis der Umsatzsteuer gemäß § 4 Nr. 12 UStG.
02
Verfügbarkeit
nach Absprache
03
Provisionsfrei
Direkt vom Eigentümer
04
Kaution
3 Netto Kaltmieten € 4.560,-
05
Doppelgarage
zzgl. € 240,-
2. Obergeschoss
Die Büroeinheit befindet sich im 2. Obergeschoss und verfügt über drei helle Büroräume. Sie ist bequem über einen Aufzug mit direktem Zugang zur Etage erreichbar.

Stilvolle Bürofläche mit hochwertiger Ausstattung
Edle Glastüren, Laminatboden sowie Einbaustrahler schaffen eine freundliche und professionelle Arbeitsatmosphäre.
Zur Ausstattung zählen außerdem eine Teeküche, Einbauschränke, eine Garderobe, ein Abstellraum sowie eine vorhandene DV-Verkabelung, die eine sofortige Nutzung ermöglicht. Darüber hinaus verfügt die Büroeinheit über getrennte Toiletten innerhalb der Fläche.
01
Miete
€ 1.140,-
zzgl. € 300,- Nebenkosten
(inkl. Heizung)
Die Vermietung erfolgt ohne Ausweis der Umsatzsteuer gemäß § 4 Nr. 12 UStG.
02
Verfügbarkeit
nach Absprache
03
Provisionsfrei
Direkt vom Eigentümer
04
Kaution
3 Netto Kaltmieten € 3.420,-

Foyer & Rezeption
Das Foyer mit Rezeption im Eingangsbereich des Gebäudes kann ebenfalls mitgenutzt werden und bietet einen repräsentativen Rahmen für den Empfang von Kunden und Geschäftspartnern. Zudem eignet sich der Bereich ideal für kurze Gespräche oder kleinere Besprechungen in angenehmer Atmosphäre.
Parkmöglichkeiten
Doppelgarage
Für das Büro im Anbau kann auf Wunsch eine Doppelgarage im Hinterhof direkt mit direktem Zugang zum Büro mit angemietet werden
Privater Anbieter
100m entfernt am Stadtpark stehen kostenpflichtige Parkplätze zur Verfügung. Daueranmietung möglich
Öffentliches Parken
Direkt an der angrenzenden Huyssenallee
Besichtigung vereinbaren:
Telefon & whatsapp: +49 171 782 062 9
E-mail: kontakt@kindlinger4.de
Anschrift: Kindlinger Straße 4, 45128 Essen

Kindlinger Straße 4
Vereinbaren Sie noch heute einen Besichtigungstermin:
Telefon & whatsapp: +49 171 782 062 9
E-mail: kontakt@kindlinger4.de
Anschrift: Kindlinger Straße 4, 45128 Essen

















